The Bell Tower & The Vestry
The Bell Tower
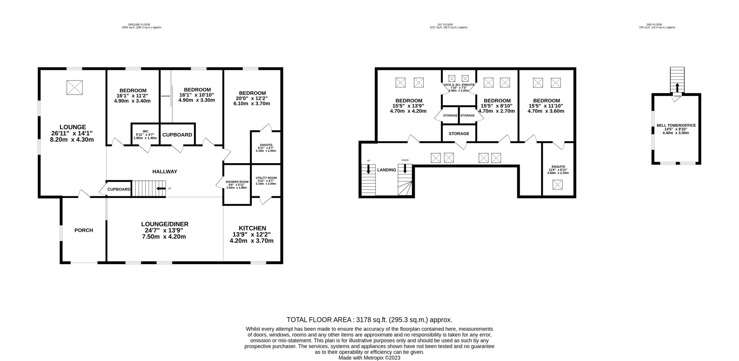
The impressive stone arch leads to an entrance porch with the accommodation comprising, spacious lounge with open plan diner, newly fitted contemporary kitchen, under stair cupboard, three bedrooms situated on ground floor, one with ensuite. Additional space is provided by generous storage cupboards throughout. The property further benefits from a separate utility room and shower room.
The upper level provides a landing offering access to a further two large bedroom suites, with fitted storage and Jack and Jill en-suite shower room. The third upper-level bedroom benefits from an en-suite with free standing bath.
Following onto the third floor, you are welcomed to the bell tower. The principal feature of this property, providing you with exclusive entertainment space and allows you to experience the striking views over the Forth Valley to Stirling Castle, The Ochils and The Campsie Hills.
Externally the church sits in landscaped garden ground, mainly laid to lawn with a driveway and ample parking provided.
Features
Generous Living Accommodation
Stunning Views
7 Bedrooms
3 bathrooms
Open Plan Kitchen/Lounge
Private Roof Terrace
Hot tub
Stunning Landscaped Garden
Location
The Vestry
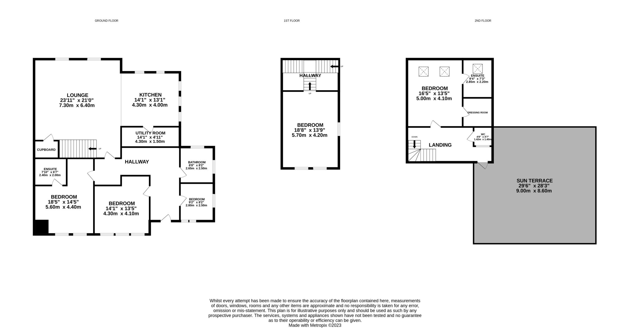
The original stone arch entrance leads to a hallway with the accommodation comprising, family room with open plan kitchen, utility room, three bedrooms, one with ensuite and a bathroom.
Off the staircase is a further bedroom or sitting room and the upper level provides a landing area offering access to a large bedroom suite with a fitted dressing room and en-suite shower room, WC and a glazed door leading out onto the large terrace which extends to 70m2 offering ample room for outside entertaining and giving amazing views over the Forth Valley to Stirling Castle, The Ochils and The Campsie Hills.
Features
Generous Living Accommodation
Stunning Views
4 Bedrooms
3 bathrooms
Open Plan Kitchen/Lounge
Private Roof Terrace
Hot tub
Stunning Landscaped Garden
Location

